Le chalet

« Le chalet » est le nom couramment donné aux habitations du camping de La Jenny, situé au Porge. Ces résidences saisonnières, implantées à proximité immédiate de la plage, s’inscrivent en harmonie avec la forêt de pins maritimes typique de la Gironde.
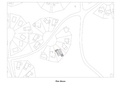
Les premières constructions, à l’origine du camping tel qu’il se présente aujourd’hui, sont organisées selon une structure urbaine en forme de marguerite. L’accès, bien que non exclusivement réservé aux piétons et aux cyclistes, est essentiellement pratiqué par eux. Il se fait par le centre de cette configuration pour desservir l’ensemble des chalets. À l’arrière, les pièces de vie et les terrasses s’ouvrent comme des pétales, se déployant dans la nature environnante.
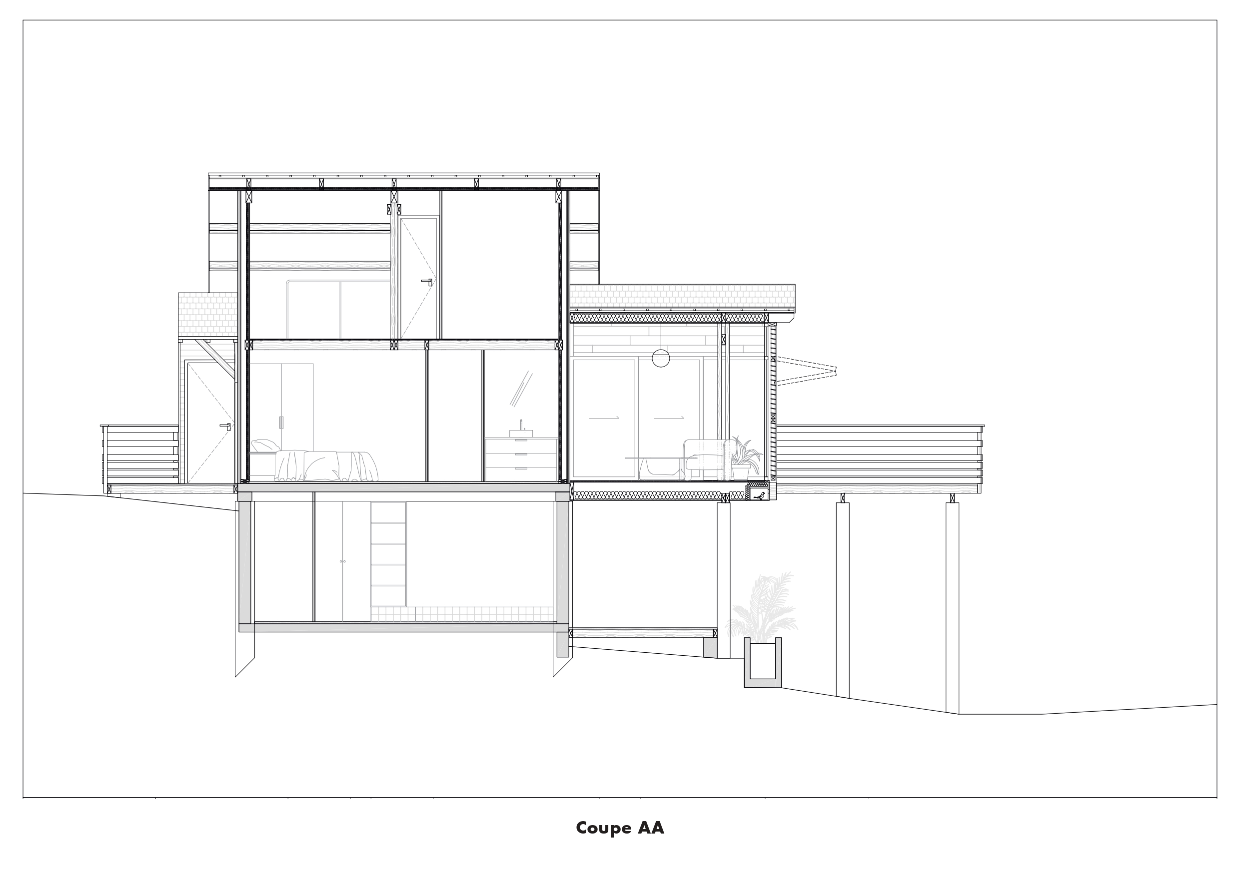
La marguerite numéro 16, où se trouve le projet, est implantée sur une colline dont le point culminant se situe en son centre. L’entrée du chalet, de plain-pied, se fait donc par le sommet de la colline. L’habitation, construite sur pilotis, s’élève ensuite progressivement au-dessus du sol pour s’ouvrir sur la forêt, à la manière d’un belvédère.
La demande du client portait sur une réorganisation intérieure afin de créer des espaces plus fonctionnels. Une extension a également été envisagée pour offrir une surface supplémentaire utilisable en hiver ou par temps de pluie.
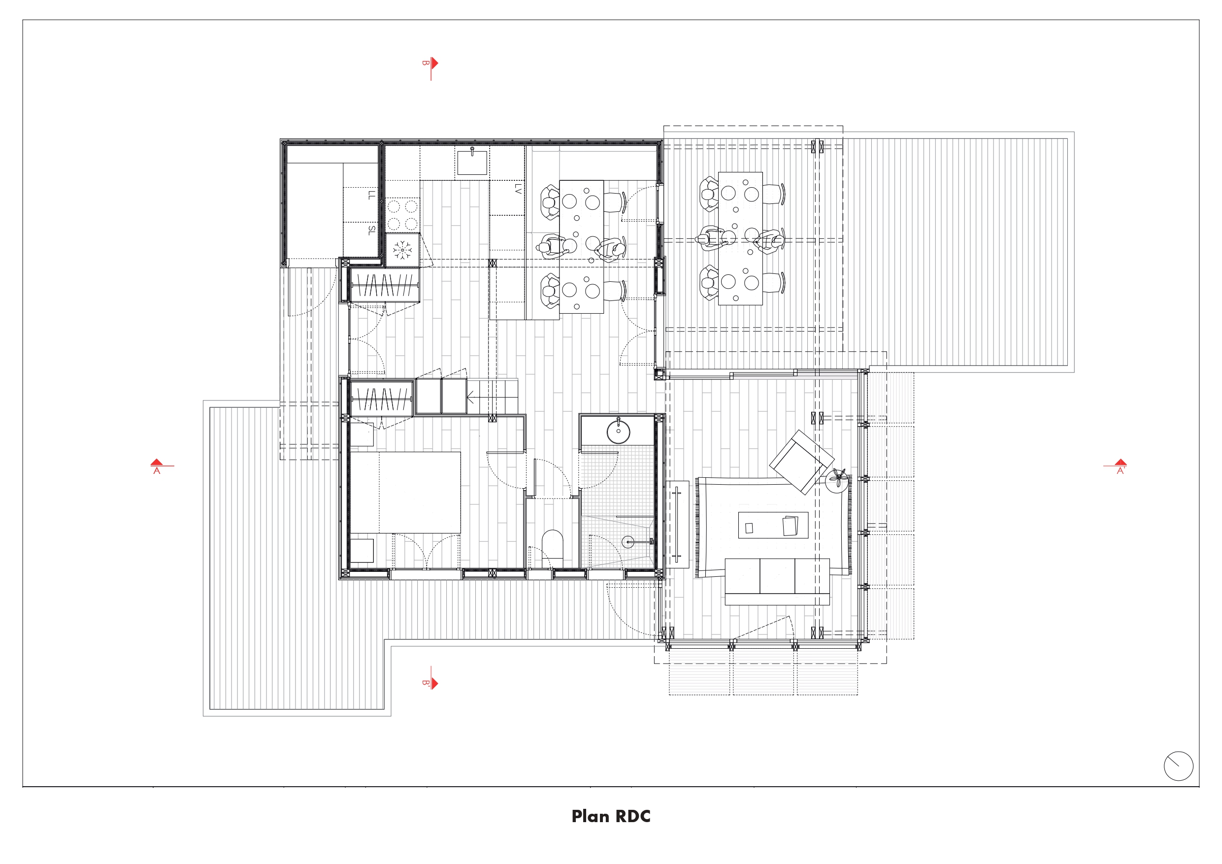
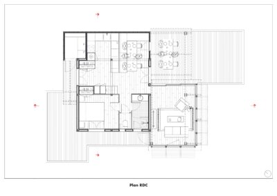
Pour répondre à ces attentes tout en valorisant la vue sur la forêt, un salon a été conçu dans le prolongement du chalet, prenant la forme d’un observatoire. Des persiennes orientées plein sud et à l’ouest ont été installées afin de limiter la surchauffe estivale. Dépliables, elles permettent de moduler l’ouverture à la lumière et à la vue selon les besoins. Du côté de la forêt, la paroi vitrée est fixe, ce qui évite l’ajout d’un encadrement de garde-corps et préserve ainsi la transparence du panorama.
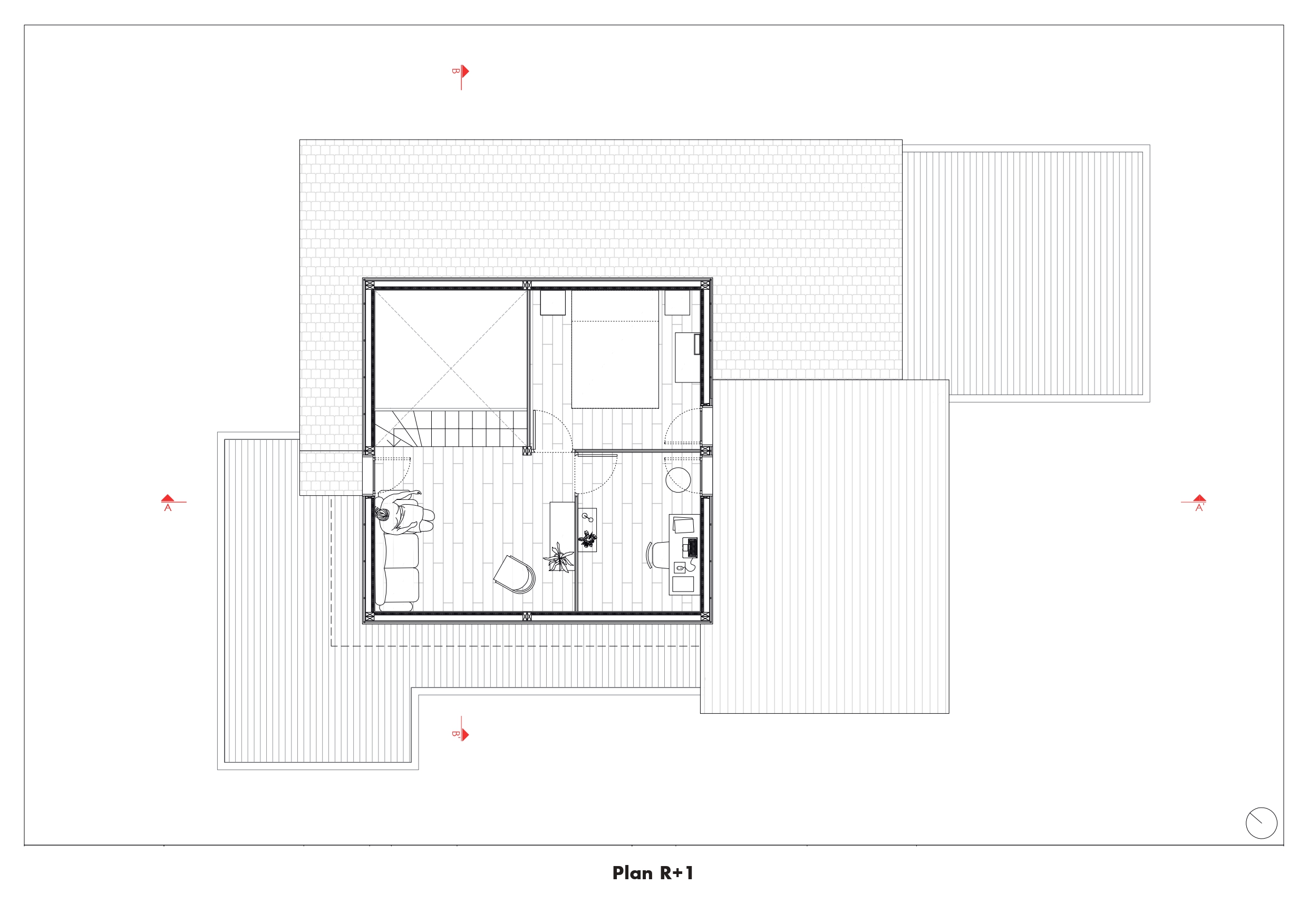
À l’intérieur, un grand espace ouvert regroupe la cuisine et la salle à manger. Une banquette multifonctionnelle fait office à la fois de rangement et de second salon. La table à manger, montée sur roulettes, permet de dégager facilement l’espace central selon les usages. L’escalier, conçu dans les mêmes matériaux que le meuble d’entrée, la cuisine et le mobilier de la salle à manger, intègre également des rangements pour le séjour et la chambre.

Projet : Le chalet
Localisation : Le Porge
Type de projet : Maison de vacances
Type de construction : Extension, réaménagement intérieur
Phase : Esquisse
Surface : 99 m²

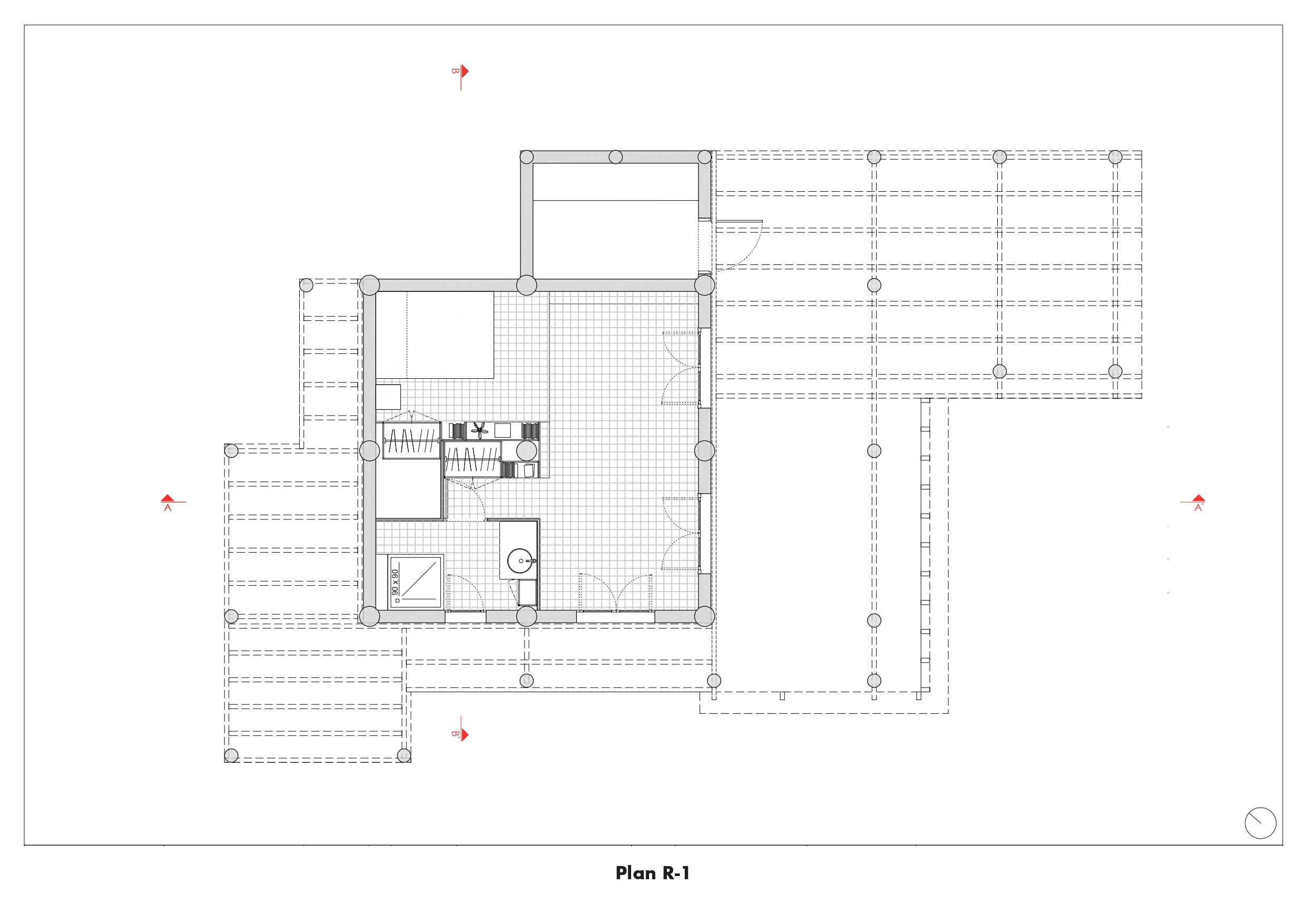
Plans